Inkrafttreten des Bebauungsplanes und der Örtlichen Bauvorschriften „Schelmenäcker – 3. Änderung“ in Erbach, Stadtteil Ringingen
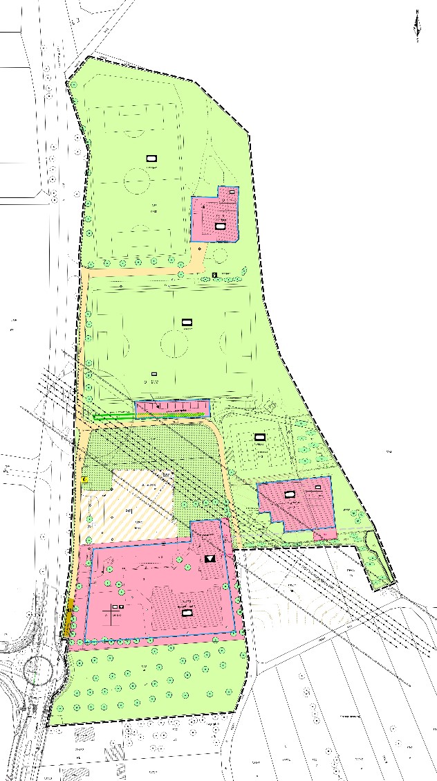
Der Geltungsbereich ist gemäß Aufstellungsbeschluss vom 22.07.2025 in dem Lageplan des
Ing.-Büros Wassermüller Ulm GmbH vom 25.06.2025/23.03.2026 festgelegt.
Im Einzelnen gelten für den Bebauungsplan und der örtlichen Bauvorschriften die Planzeichnung, die textlichen Festsetzungen (planungsrechtlicher Teil) und die örtlichen Bauvorschriften mit Begründung des Ingenieurbüros Wassermüller Ulm GmbH mit dem Datum vom 25.06.2025/23.03.2026 sowie das Artenschutzgutachten des Büros Sieber Consult vom 05.06.2025.
Der Gemeinderat der Stadt Erbach hat in seiner öffentlichen Sitzung am 23.03.2026 den Bebauungsplan „Schelmenäcker – 3. Änderung“ in Erbach, ST Ringingen nach § 10 Abs. 1 des BauGB und die Satzung zu den örtlichen Bauvorschriften nach dem Verfahren für den Bebauungsplan nach § 74 der Landesbauordnung in Verbindung mit § 10 Abs. 1 BauGB als jeweils selbstständige Satzung beschlossen.
Der Bebauungsplan und die örtlichen Bauvorschriften „Schelmenäcker – 3. Änderung“ i. d. F. vom 25.06.2025/23.03.2026 treten mit der öffentlichen Bekanntmachung in Kraft.
Der Bebauungsplan und die örtlichen Bauvorschriften mit Begründung, Artenschutzprüfung und Satzungsbeschluss werden in der Stadtverwaltung Erbach, Rathaus, Erlenbachstraße 20., 89155 Erbach zu den ortsüblichen Öffnungszeiten zu jedermanns Einsicht bereitgehalten. Über deren Inhalt wird auf Verlangen Auskunft erteilt. Weiterhin können die Unterlagen im Internet auf der Homepage der Stadt Erbach eingesehen werden
Auf die Vorschriften des § 44 Abs. 3 Satz 1 und 2 BauGB über die Fälligkeit etwaiger Entschädigungsansprüche im Falle der in § 39 - 42 BauGB bezeichneten Vermögensnachteile, deren Leistung schriftlich beim Entschädigungspflichtigen zu beantragen ist, und des § 44 Abs. 4 BauGB über das Erlöschen von Entschädigungsansprüchen, wenn der Antrag nicht innerhalb der Frist von drei Jahren nach Ablauf des Kalenderjahres gegenüber der Stadt Erbach gestellt ist, wird verwiesen.
Unbeachtlich werden
- eine nach § 214 Abs. 1 Satz 1 Nr. 1 bis 3 BauGB beachtliche Verletzung der dort bezeichneten Verfahrens- und Formvorschriften,
- eine unter Berücksichtigung des § 214 Abs. 2 BauGB beachtliche Verletzung der Vorschriften über das Verhältnis des Bebauungsplanes und des Flächennutzungsplanes und nach § 214 Abs. 3 Satz 2 BauGB beachtliche Mängel des Abwägungsvorganges,
- wenn sie nicht schriftlich oder elektronisch innerhalb eines Jahres seit dieser Bekanntmachung des Bebauungsplanes bzw. der Satzung gegenüber der Stadt Erbach geltend gemacht worden sind. Der Sachverhalt, der die Verletzung oder den Mangel begründen soll, ist darzulegen.
Eine etwaige Verletzung von Verfahrens- und Formvorschriften der Gemeindeordnung für Baden-Württemberg (GemO) in der aktuellen Fassung oder der auf Grund der GemO erlassener Verfahrensvorschriften ist nach § 4 Abs. 4 GemO in dem dort bezeichneten Umfang unbeachtlich, wenn sie nicht schriftlich oder elektronisch innerhalb eines Jahres seit dieser Bekanntmachung gegenüber der Stadt Erbach geltend gemacht worden ist. Der Sachverhalt, der die Verletzung begründen soll, ist zu bezeichnen.
Dies gilt nicht, wenn
- die Vorschriften über die Öffentlichkeit der Sitzung, die Genehmigung oder die Bekanntmachung verletzt worden sind oder
- der Bürgermeister dem Beschluss nach § 43 GemO wegen Gesetzwidrigkeit widersprochen hat oder
- vor Ablauf der Jahresfrist die Rechtsaufsichtsbehörde den Beschluss beanstandet oder ein Dritter die Verfahrensverletzung gerügt hat.
Erbach, den 01.04.2026
Achim Gaus
Bürgermeister
